中国医学科学院整形外科医院对新楼下沉庭院和四层外廊地面及台阶工程招标,特邀请符合资质的投标人前来投标。
1、招标范围:
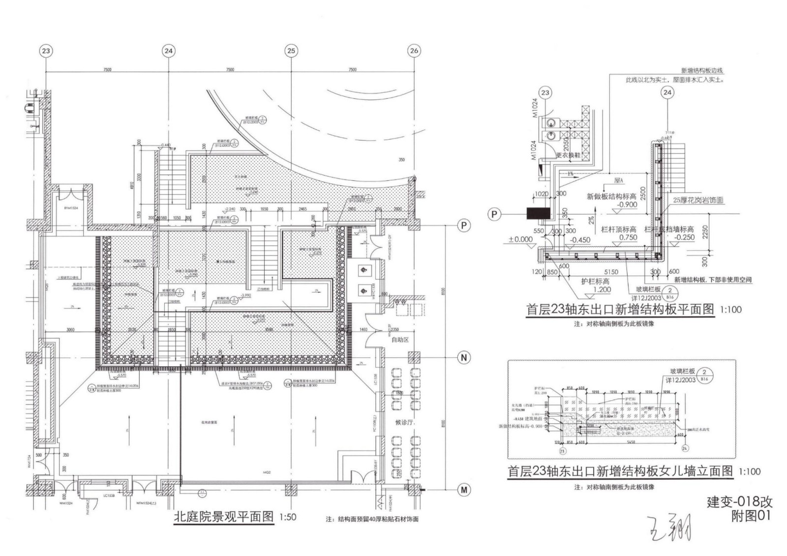
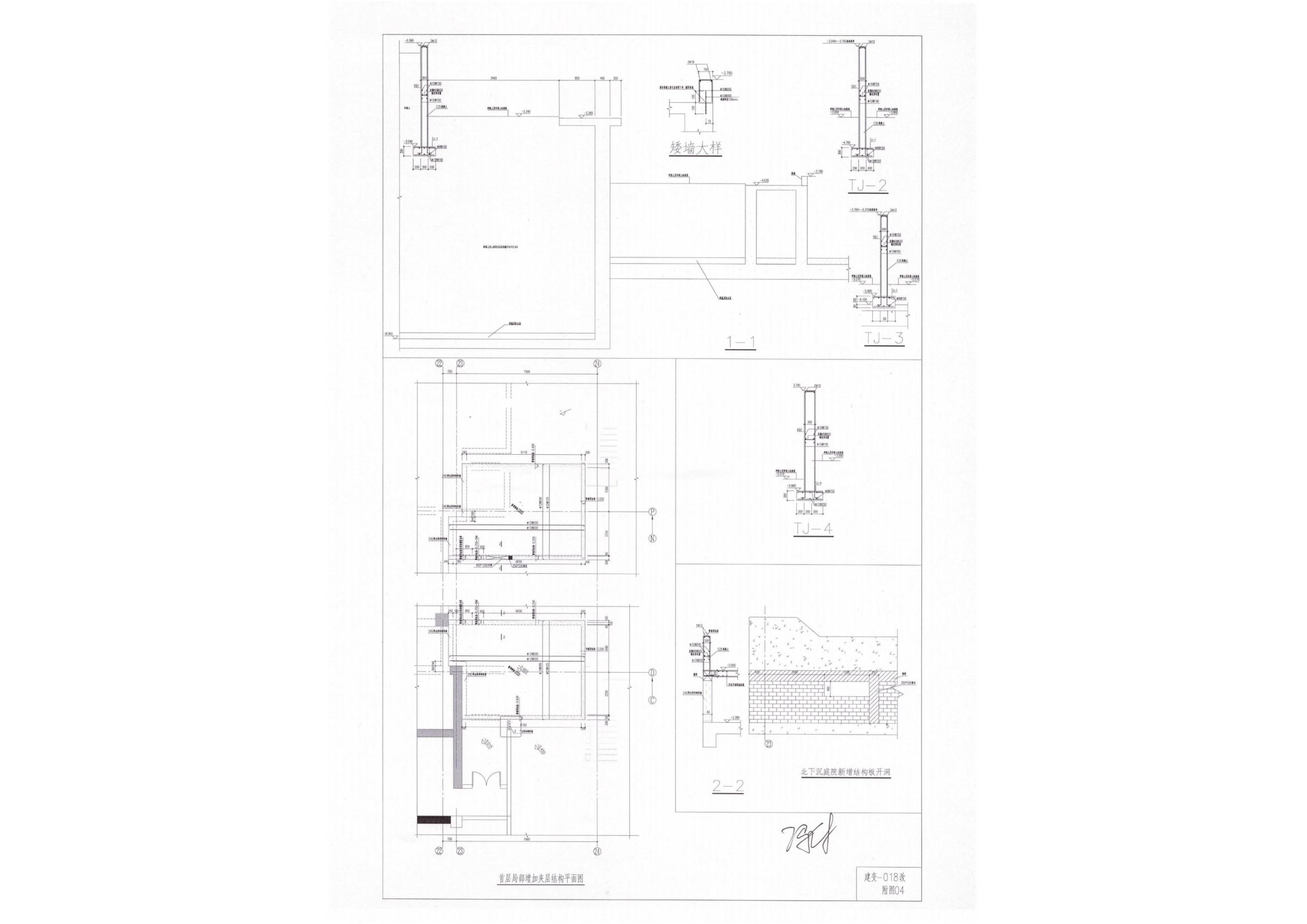
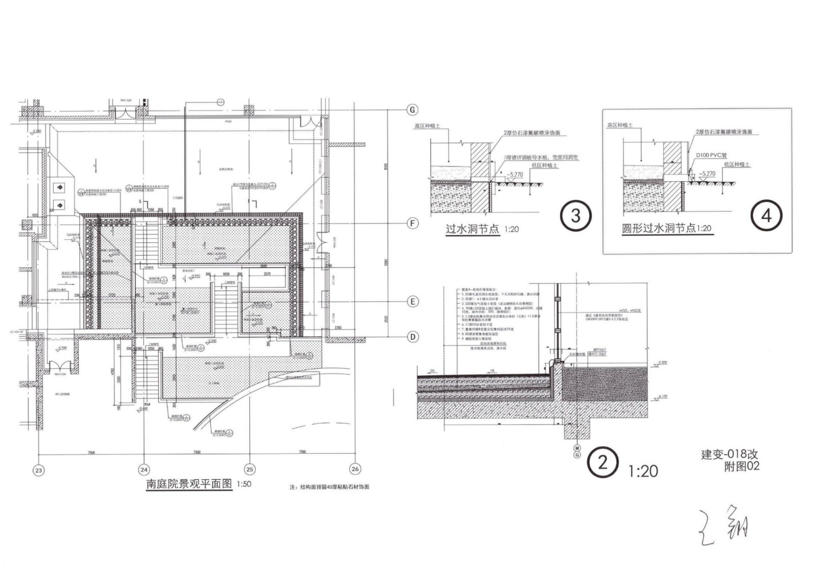
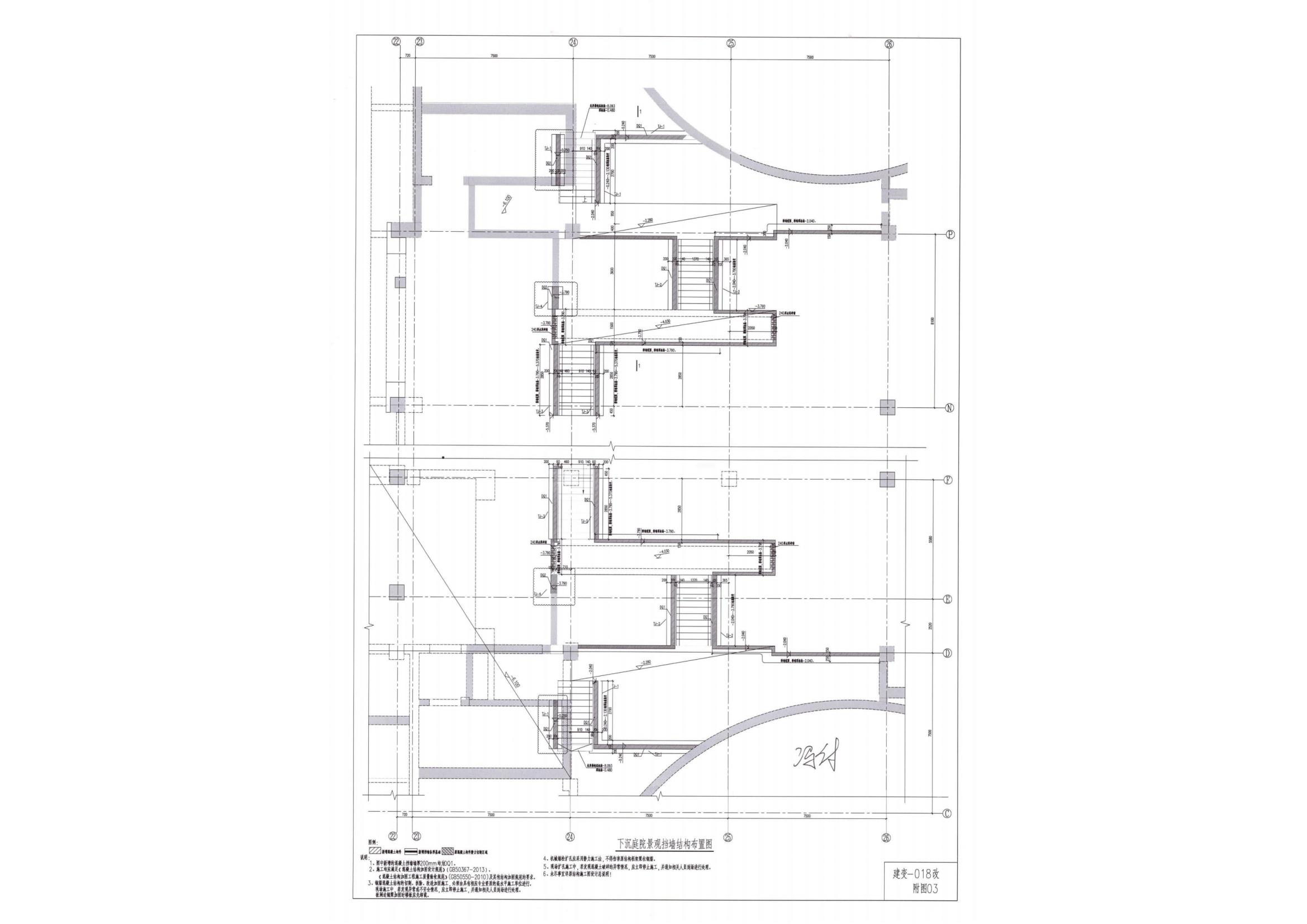
(1)、南北下沉庭院工程;
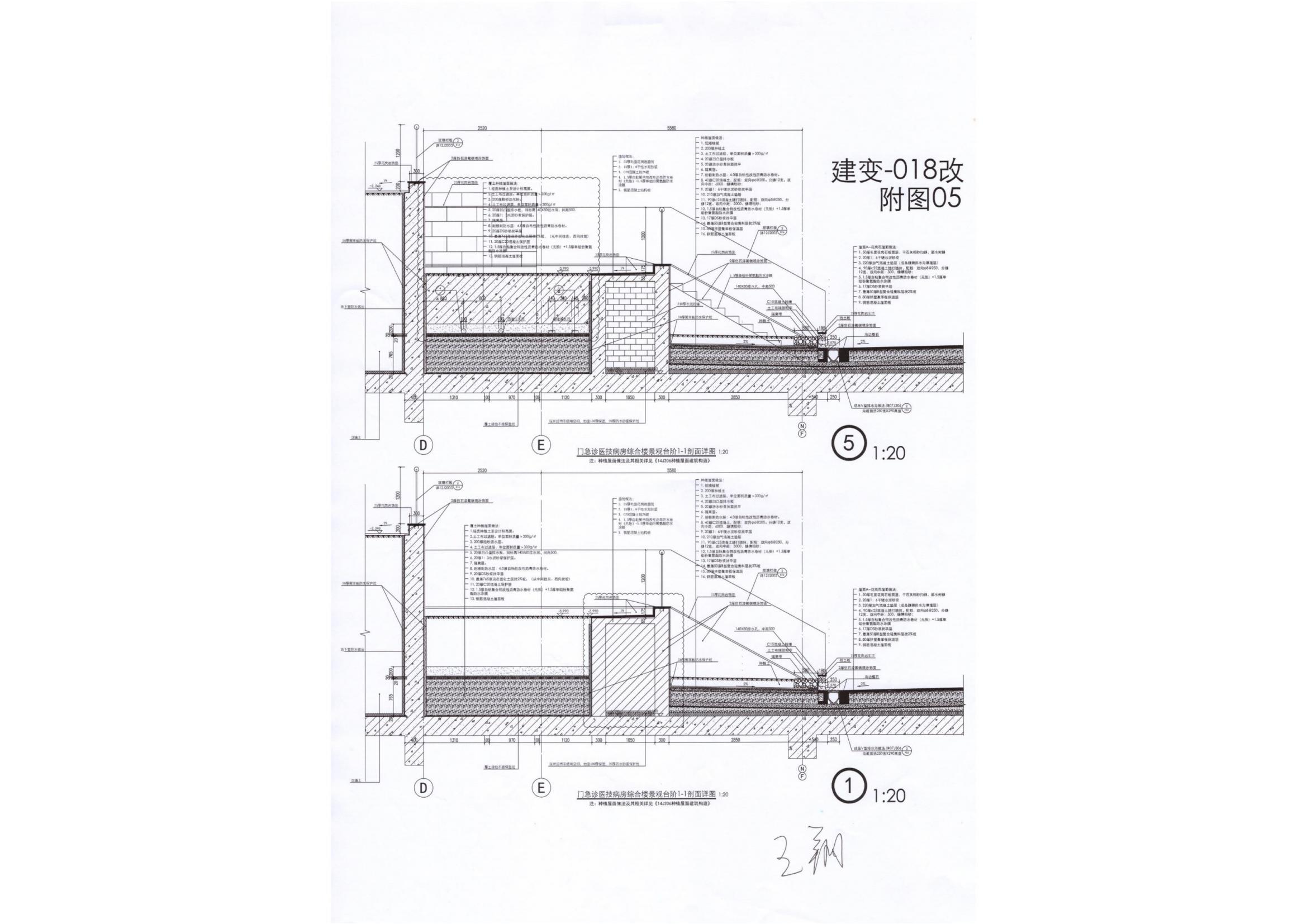
(2)、四层外廊地面及台阶的施工。四层外廊地面面积144.31m²,其余详见附图。
2、资质要求:
(1)、投标人须具有独立的法人资格并持有有效的营业执照;
(2)、资质条件∶施工总承包三级(新)级以上的施工企业;
(3)、项目负责人须具有有效的建筑工程项目经理二级级以上注册建造师职业资格,具备有效的安全生产考核合格证书(B本);
(4)、没有处于被责令停业,投标资格被取消,财产被接管、冻结,破产状态;
(5)、近三年(2019年1月1日至今)无违法违规或不良行为记录;
(6)、本项目不接受联合体投标;
(7)、近三年(2019年1月1日至今)有装饰装修施工业绩;
(8)、投标人必须到现场踏勘,以现场实际为准。
3、技术要求:
(1)、外廊地砖为马赛克,颜色为深色,材料满足耐冻、耐腐蚀要求;
(2)、附图中的玻璃栏板变更为不锈钢栏杆;不锈钢栏杆满足图集规范要求;其它未注明材料应符合国家相关规范要求。
(3)、满足现行国家及相关行业验收规范要求。
(4)、工期要求∶30日历天。
4、报名所需要的资料
提供有效企业法人营业执照(复印件加盖公章)、组织机构代码证(复印件加盖公章)、税务登记证(复印件加盖公章)或者三证合一;
法人身份证复印件;
公司及个人授权书;
代理人身份证复印件;
携带行业成功经验和案列(包括实施合同复印件等证明材料);
提供相关资质证书;
北京市工商局或国家企业信用信息公示系统打印本企业信息;
三、 报名时限
2022年03月01日至2022年03月07日16时止
报名地址:中国医学科学院整形外科医院(八大处)设备处
会议时间: 待定,另行通知
报名联系人:颜老师
报名电话:88771580、18610243077
附件:下沉庭院附图和种植屋面台阶附图










公安备案:1104021102070004